Präzises Aufmaß – die Grundlage für jede erfolgreiche Immobilienplanung
Stellen Sie sich vor, Ihr Bauprojekt startet – und plötzlich passen die Pläne nicht, Genehmigungen verzögern sich oder Kosten explodieren. Ursache? Ein ungenaues Aufmaß.
Das Aufmaß ist die unsichtbare Basis, auf der Architekten, Ingenieure, Handwerker, Energieberater, Investoren und Behörden ihre Entscheidungen treffen.
Ein Fehler hier wirkt wie ein Dominostein – er kippt alles. Darum sollten Sie Ihr Aufmaß nur den Besten anvertrauen: Profis, die wissen, welche Tragweite jeder Millimeter haben kann.

Warum Sie bei Ihrem Aufmaß keine Kompromisse eingehen sollten
Ein professionell erstelltes Aufmaß bedeutet für Sie:
Planung ohne teure Überraschungen - von Anfang an die richtigen Maße.
Reibungslose Zusammenarbeit aller Projektbeteiligten – jeder arbeitet mit denselben, korrekten Daten.
Schnellere Genehmigungen – Bauamt, Denkmalamt oder Förderstellen verlangen exakte Unterlagen.
Kostensicherheit – falsche Maße führen zu falschen Mengen und unnötigen Mehrkosten.
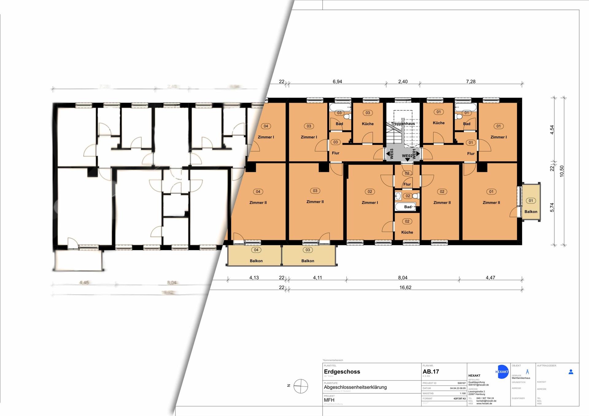
Unser Gebäudeaufmaß – präzise, digital, verlässlich
Individuell auf Ihr Vorhaben abgestimmt und im gesamten D-A-CH-Raum für Sie vor Ort.
Vor-Ort-Termin mit modernster Messtechnik für millimetergenaue Ergebnisse
Prüfung und Korrektur vorhandener Pläne (Plausibilitätskontrolle)
Vollständige Bestandsaufnahme aller relevanten Gebäudedaten
Erstellung digitaler CAD-Pläne & 3D-Modelle für direkte Weiterverwendung in Planung und Visualisierung
Ihr Vorsprung durch Präzision
Wir wissen, wie entscheidend ein korrektes Aufmaß für Großprojekte ist – und wie sehr ein Fehler am Anfang das gesamte Projekt gefährden kann.
Mit uns investieren Sie in Planungssicherheit, klare Kommunikation zwischen allen Beteiligten und einen Projektstart ohne Stolpersteine.
mehr als 1,7 Mio.
Gemessene Fläche
über 700 Stk.
Einheiten
seit 5 Jahren
Erfahrung
Terminvereinbarung mit Mieter:innen
Damit das Aufmaß ohne Verzögerungen erfolgen kann, übernehmen wir auf Wunsch auch die direkte Terminabstimmung mit den Mieter:innen des Gebäudes – schnell, diskret und selbstverständlich DSGVO-konform.
So stellen wir sicher, dass alle benötigten Bereiche pünktlich zugänglich sind und Ihr Projektplan eingehalten wird.
Diskretion vor Ort
Bei unseren Vor-Ort-Terminen hat Diskretion höchste Priorität. Unser Team ist erfahren im Umgang mit sensiblen Situationen und begegnet Fragen oder Unsicherheiten stets professionell und einfühlsam. So sorgen wir dafür, dass das Aufmaß für alle Beteiligten so angenehm und reibungslos wie möglich verläuft.
Sichern Sie sich jetzt Ihr präzises Aufmaß.
Ob Mehrfamilienhaus, Industriegebäude oder Einfamilienhaus. Kontaktieren Sie uns für ein unverbindliches Angebot oder Erstgespräch.
+49 (0) 40 307 194 24
Hamburg, Bremen, Münster & NRW